C’est concevoir un intérieur fidèle à votre personnalité, votre énergie et votre histoire, pour qu’il prenne pleinement sens et devienne un lieu intemporel. Notre approche ? Concevoir des espaces fonctionnels et adaptés à vos usages, qu’il s’agisse de logements, de bureaux ou de commerces, en intégrant des espaces propices au bien-être et à la déconnexion, tout en valorisant le réemploi, les matériaux durables et la seconde vie du mobilier via des associations locales.
Deden ton intérieur, c’est créer l’intérieur qui TE rend unique.

Il ne s’agit pas d’un espace réel, mais d’une représentation conceptuelle de vos besoins. Ici : lumière naturelle, espaces ouverts, circulations fluides, matériaux authentiques et palette douce aux formes arrondies.
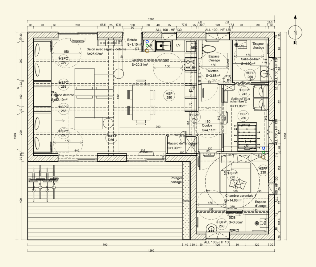
Les intentions du projet se traduisent dans un agencement adapté au mode de vie. Ici : circulations fluides, mobilier multifonction et espaces pensés pour conjuguer convivialité, fonctionnalité et déconnexion.
La 3D concrétise les choix d’agencement, de matériaux et de couleurs. C’est ici que l’ambiance définie en amont prend vie pour aboutir à un intérieur fidèle à vos usages et à l’esthétique imaginée ensemble. Ici : une cuisine authentique accessible aux personnes à mobilité réduite.
Le suivi des travaux permet de veiller à la bonne exécution du projet : coordination des entreprises, contrôle qualité, respect des plans et du planning pour assurer un résultat fidèle.
De la vision
Il ne s’agit pas d’un espace réel, mais d’une représentation conceptuelle de vos besoins. Ici : lumière naturelle, espaces ouverts, circulations fluides, matériaux authentiques et palette douce aux formes arrondies..
Aux plans techniques
Les intentions du projet se traduisent dans un agencement adapté au mode de vie. Ici : circulations fluides, mobilier multifonction et espaces pensés pour conjuguer convivialité, fonctionnalité et déconnexion.
En passant par la 3D
La 3D concrétise les choix d’agencement, de matériaux et de couleurs. C’est ici que l’ambiance définie en amont prend vie pour aboutir à un intérieur fidèle à vos usages et à l’esthétique imaginée ensemble. Ici : une cuisine authentique accessible aux personnes à mobilité réduite.
Jusqu’au suivi des travaux
Le suivi des travaux permet de veiller à la bonne exécution du projet à travers le coordination des entreprises, le contrôle qualité, le respect des plans et du planning pour assurer un résultat fidèle.
Il ne s’agit pas d’un espace réel, mais d’une représentation conceptuelle de vos besoins. Ici : lumière naturelle, espaces ouverts, circulations fluides, matériaux authentiques et palette douce aux formes arrondies.
Les intentions du projet se traduisent dans un agencement adapté au mode de vie. Ici : circulations fluides, mobilier multifonction et espaces pensés pour conjuguer convivialité, fonctionnalité et déconnexion.
La 3D donne vie aux choix d’agencement, de matériaux et de couleurs, pour un intérieur fidèle à vos usages et à l’esthétique imaginée ensemble. Ici : une cuisine authentique accessible aux personnes à mobilité réduite.
Le suivi des travaux permet de veiller à la bonne exécution du projet à travers la coordination des entreprises, le contrôle qualité, le respect des plans et du planning pour assurer un résultat fidèle.
Mon rôle est d’apporter une âme aux espaces, en les façonnant selon votre manière de vivre ou de travailler.
Chaque projet que je conçois est pensé pour vous faire sens : un intérieur qui raconte votre histoire et dans lequel vous vous sentez naturellement à votre place.
Chez Deden Home Architecture, je crée des intérieurs fidèles à votre personnalité, votre énergie et vos usages, en prenant le temps de comprendre ce qui vous rend unique.
“Deden”, clin d’œil au surnom de ma grand-mère, incarne cette sensation d’accueil, de caractère et de bien-être que je souhaite insuffler à chaque projet : un intérieur juste, à votre image, agréable à vivre au quotidien.
Forte de mon expérience en construction et en promotion immobilière, j’allie compréhension technique et sensibilité créative. Fonctionnalité, adaptabilité et esthétique se rencontrent, avec cette touche waouh ! qui transforme subtilement un lieu. Le tout, dans une démarche responsable intégrant réemploi, matériaux durables, partenariats locaux et dons aux associations.
C’est cela, l’esprit Deden : créer des intérieurs uniques, pensés pour vous, pour aujourd’hui et pour demain.
Mon rôle est d’apporter une âme aux espaces, en les façonnant selon votre manière de vivre ou de travailler.
Chaque projet que je conçois est pensé pour vous faire sens : un intérieur qui raconte votre histoire et dans lequel vous vous sentez naturellement à votre place.
Chez Deden Home Architecture, je crée des intérieurs fidèles à votre personnalité, votre énergie et vos usages, en prenant le temps de comprendre ce qui vous rend unique.
“Deden”, clin d’œil au surnom de ma grand-mère, incarne cette sensation d’accueil, de caractère et de bien-être que je souhaite insuffler à chaque projet : un intérieur juste, à votre image, agréable à vivre au quotidien.
Forte de mon expérience en construction et en promotion immobilière, j’allie compréhension technique et sensibilité créative. Fonctionnalité, adaptabilité et esthétique se rencontrent, avec cette touche waouh ! qui transforme subtilement un lieu. Le tout, dans une démarche responsable intégrant réemploi, matériaux durables, partenariats locaux et dons aux associations.
C’est cela, l’esprit Deden : créer des intérieurs uniques, pensés pour vous, pour aujourd’hui et pour demain.
Mon rôle est d’apporter une âme aux espaces, en les façonnant selon votre manière de vivre ou de travailler.
Chaque projet que je conçois est pensé pour vous faire sens : un intérieur qui raconte votre histoire et dans lequel vous vous sentez naturellement à votre place.
Chez Deden Home Architecture, je crée des intérieurs fidèles à votre personnalité, votre énergie et vos usages, en prenant le temps de comprendre ce qui vous rend unique.
“Deden”, clin d’œil au surnom de ma grand-mère, incarne cette sensation d’accueil, de caractère et de bien-être que je souhaite insuffler à chaque projet : un intérieur juste, à votre image, agréable à vivre au quotidien.
Forte de mon expérience en construction et en promotion immobilière, j’allie compréhension technique et sensibilité créative. Fonctionnalité, adaptabilité et esthétique se rencontrent, avec cette touche waouh ! qui transforme subtilement un lieu. Le tout, dans une démarche responsable intégrant réemploi, matériaux durables, partenariats locaux et dons aux associations.
C’est cela, l’esprit Deden : créer des intérieurs uniques, pensés pour vous, pour aujourd’hui et pour demain.